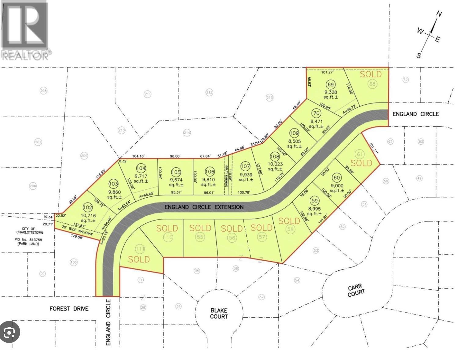
A great location residential lot in a highly sought after subdivision in Charlottetown forsale! The lot is fully serviced with underground electrical and is located only minutes from commercial areas, restaurants, supermarkets and close to the best schools in Charlottetown. This lot situated in a quiet neighbourhood. (id:4069)



